WOONTOREN EN PUBLIEKE RUIMTES HIGHNOTE, ALMERE
WOONTOREN EN PUBLIEKE RUIMTES HIGHNOTE, ALMERE
Auteur: Foka Kempenaar
Woontoren Highnote in hartje Almere laat zien hoe beton op verschillende schalen esthetisch beeldbepalend kan zijn: door zijn stoere contouren en strakke raster is dit een markant gebouw dat meedoet met de skyline. Tegelijkertijd valt je steeds meer op als je het gebouw nadert: “Zoals het interessante schaduwspel, door de opvallend diepe negges”, zegt Eva Souren, architect bij Studioninedots.
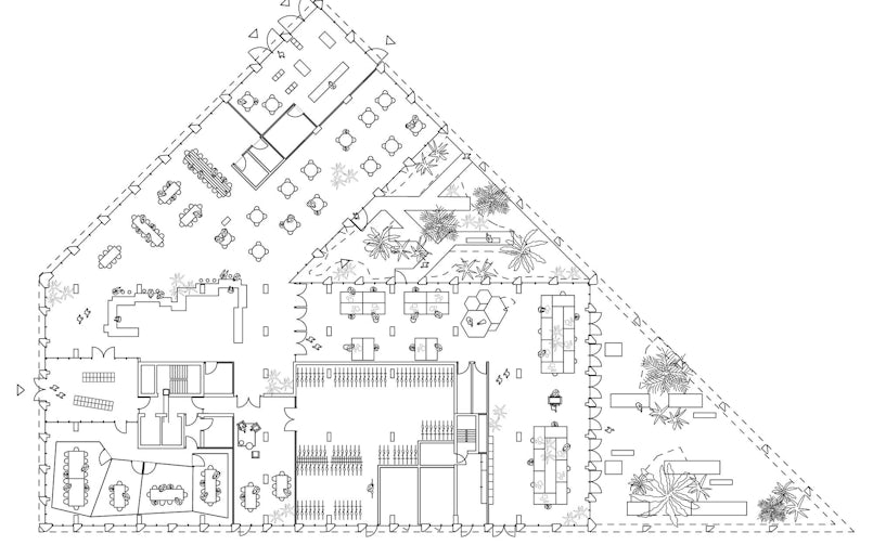
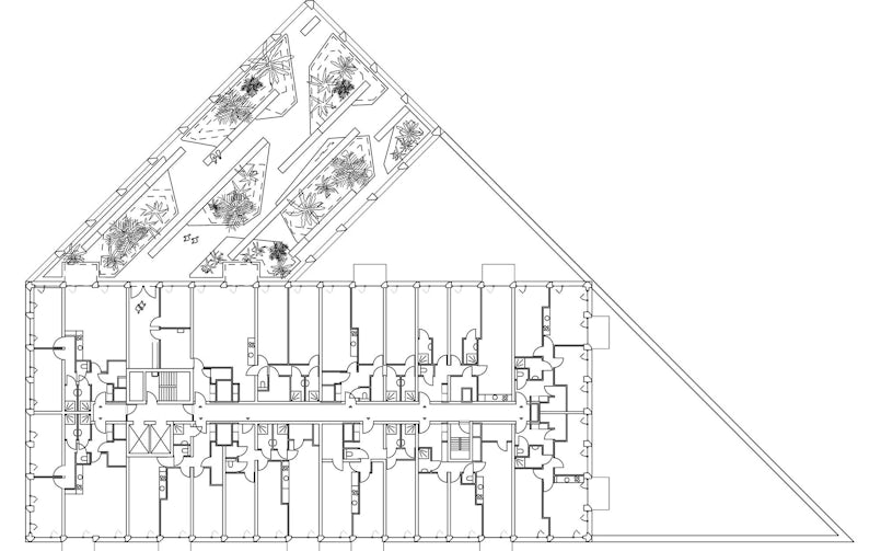
Highnote is een iconisch gebouw in het centrum van Almere. Het is gepositioneerd op een driehoekige grid pal naast het stadhuis en cultureel centrum De Voetnoot. Het omvat 19 verdiepingen met daarin 157 huurappartementen, inclusief 66 zogenoemde ‘Friends’ woningen. Een Friendswoning is voor twee personen en deel je met een vriend(in), familielid, collega of andere woongenoot. De vier volumes waarmee de toren is opgebouwd, hebben dezelfde strakke penantvorm, maar wel elk met een eigen ritme.
De positionering van Highnote sluit aan bij het stedelijk weefsel van Almere – dat bestaat uit thematische pleinen – en geeft het centrum van Almere een levendige boost: “De achterzijde van het naastgelegen culturele centrum was altijd wat grauw en doods, maar met het toevoegen van Highnote, zijn er condities geschapen voor een nieuw, klein stadsplein.”
De driehoekige betonnen plint die deze woontoren omsluit, bestaat volledig uit ‘stadskamers’. Intieme, stedelijke binnen- en buitenruimtes die vloeiend in elkaar overgaan en je verleiden er doorheen te dwalen. Samen vormen de stadskamers de geleidelijke overgang van de bruisende stad en het nieuwe plein, naar de privé-woningen in de toren.
De betonnen gevel van Highnote bestaat bijna helemaal uit dragende prefab sandwichelementen. Die zijn vóórdat ze op de bouwplaats arriveerden al voorzien van kozijnen en beglazing. Ook de balkons zijn prefab geproduceerd, en werden voorafgaand aan het naar boven hijsen op de bouwplaats voorzien van een paneelhek met glasvulling. Voor montage is elk prefab element op de bouwplaats aan de bovenzijde bovendien voorzien van een speciaal ontwikkeld, demontabel veiligheidshek. Dat diende als randkist én schoorvoorziening.
De structuur en bouwwijze van Highnote geeft deze woontoren flexibiliteit, in het ruimtelijk ontwerp en de programmering. Zo kunnen woningen in de toekomst worden aangepast of samengevoegd. Ook kun je de plint op verschillende manieren indelen en kan het gebruik van de gemeenschappelijke buitenruimtes worden aangepast.


Dat het gevelbeeld van deze woontoren zeer strak oogt, heeft veel te maken met tijdige afstemming in het bouwteam: “Doordat alle stakeholders al in heel vroeg stadium aan tafel zaten, hebben we uitgebreid af kunnen stemmen over een optimale positionering van de elementen.” Naden die zichtbaar zijn sluiten logisch aan en vormen doorlopende lijnen.
De prefab elementen bleken ook een gouden greep in verband met de beoogde diepe, schuine negges. “Zo’n ontwerpkeuze kan ten koste gaan van het gebruiksoppervlak. Bij het realiseren van de prefab elementen is hier rekening mee gehouden: door het dragende buitenblad, kon het binnenblad extra dun worden uitgevoerd, waardoor juist extra gebruiksoppervlak is gecreëerd.”
Ook is goed nagedacht over de afwerking. Zo heeft de architect aan één zijde van de plint een verbijzondering in de penant gemaakt. Eén zijde heeft een ruwer oppervlak. Om die extra structuur te creëren zijn in de mal zogenoemde reckli matten meegestort. De rest is van het beton is licht gestraald.
Naast de positionering en de stadskamers van Highnote doorbreekt ook de kleur van dit bouwwerk het beeld van Almere Centrum op prettig wijze: het opvallende zachtrode beton contrasteert prettig met de veelal grijze en witte gevels. De kleur verzacht bovendien het stoere, rechtlijnige raster. “Wat ik mooi vind, is dat die tint lijkt te spelen met het weer: op een heldere dag is de zachtrode tint veel sterker.”