De kunst van het loslaten

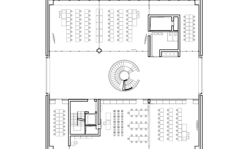
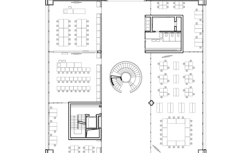
CAMPUS MOOS, RÜSCHLIKON (ZWITSERLAND)

De uitbreiding van de middelbare school Campus Moos past feilloos in de architectonische filosofie van E2A architects, dat wordt gerund door de broers Piet en Wim Eckert. Vrij vertaald kun je die filosofie omschrijven als ‘de kunst van het loslaten’: in het ontwerp en tijdens de uitvoering optimaal en compromisloos inzetten op het architectonische statement van het gebouw, maar niet alles tot in detail willen controleren. Het helpt natuurlijk dat de architecten mogen vertrouwen op de rijke Zwitserse traditie in betonvakmanschap.

Bekijk de sfeervolle video over Campus Moos van Alberto Canepa.

Tektoniek-evenement Swiss Concreteness

In het najaar van 2016 hebben 15 masterstudenten Architectuur aan TU Eindhoven (leerstoel ADE) zich tijdens het seminar Swiss Concreteness in het werk van E2A architects verdiept. Onderdeel was een exclusief bezoek aan, en interview met, Wim Eckert. Hij sloot het seminar op 27 oktober af met een bevlogen Tektoniek-lezing.
Bekijk hier het interview met Wim Eckert, zowel in video als artikel. Het project Campus Moos komt hierin uitgebreid aan bod.

Ook interessant

Esthetisch
Projecten
Architectenbureau ZJA | Het Prinses Amaliaviaduct vormt het sluitstuk van een serie oogstrelende kunstwerken op Maasvlakte 2.
Esthetisch
Projecten
Architectenbureau Van den Heuvel | Het OK-tankstation in Middelburg heeft grote sparingen in de wand met het logo en decoratieve cirkels.
Esthetisch
Projecten
Mei architects and planners | Woongebouw De Verkenner in Utrecht heeft inventief prefabbeton gevelsysteem met geïntegreerde tegels.