UITBREIDING NATURALIS, LEIDEN
Auteur: Cindy Vissering
Duurzaam materiaalgebruik en inspiratie uit de natuur waren de ontwerpuitgangspunten voor de uitbreiding van het Naturalis Biodiversity Center in Leiden. De toegepaste materialen verouderen op een natuurlijke manier en deze materialen komen in de gehele nieuwbouw telkens terug: beton, natuursteen, glas, staal en eikenhout. Het ontwerp refereert aan natuur en dierpatronen. Neutelings Riedijk Architecten in een interview met de Architect: “Pas als je een materiaal, patroon of afwerking met een eigen karakter hebt, kan een gebruiker die relatie leggen. Als mens ben je daartoe in staat, omdat het gebouw via zijn materialen spreekt en expressie heeft. De bezoekersaantallen en de ontvangst hebben zeker te maken met de mate waarin mensen een gesprek kunnen aangaan met een gebouw.”
Naturalis was toe aan een uitbreiding vanwege het samengaan van het Nationaal Historisch museum Naturalis met het Nationaal Herbarium NL (Leiden en Wageningen) en het Zoölogisch Museum Amsterdam. En daarmee een uitbreiding van de artefacten tot 42 miljoen natuurhistorische objecten en 820 medewerkers (waarvan 200 onderzoekers). Jaarlijks ontving het museum 425.000 mensen, dat verdubbelde na de renovatie. De onderzoekers moesten voorheen fietsen van depot naar de onderzoeklaboratoria. In het te klein geworden gebouw was er tevens kans op besmetting vanuit de museumzalen naar het depot.
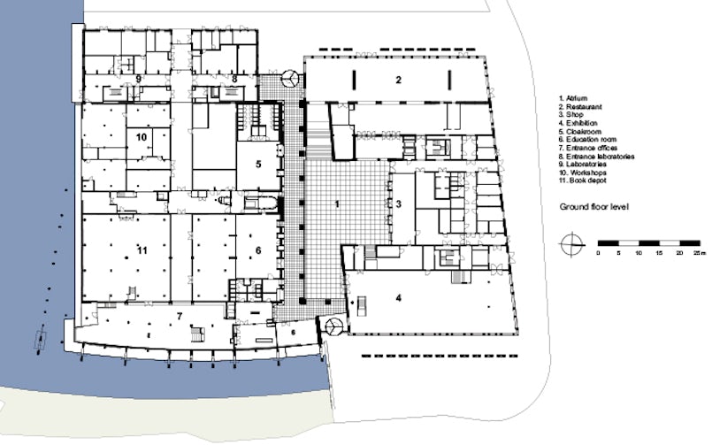
In het ontwerp is het bestaande blok met depottoren van 62 m en museumzalen geheel bestemd voor depots en kan zo goed gescheiden worden gehouden van de publieke gedeeltes. De oude museumzalen waren 8,6 m hoog en zijn voor de depotfunctie voorzien van tussenvloeren. In het nieuwe ontwerp wordt het gebouw ontsloten vanuit de centrale hal, die in de plattegrond een ‘leeg’ vierkant is, gespiegeld aan het blok met depots. Tussen deze twee vierkanten loopt een openbare route door het gebouw heen.
De museumzalen steken als een berg in de centrale hal, onderin breed en naar boven toe smaller wordend, waardoor de hal een ruim atrium wordt met veel licht. De trappen van 3 m breedte zijn als het ware uitgehouwen in de bergwand. Op deze manier is de gehele museale route goed zichtbaar en nodigt uit tot verkennen van de verschillende zalen. Dit sluit aan bij de vraag vanuit het museum om een modern museum te creëren waarbij verleiding en beleving onderdeel uitmaken van het concept.
Het beeld van de berg wordt verstrekt door het materiaalgebruik: de rode, gekliefde natuursteen uit Iran is met de ruwe zijde naar voren geplaatst. Door de stapeling in lagen lijkt het alsof er een uitsnede van de aarde is gemaakt. Witte banden van betonnen elementen met een structuur van fossielen accentueren de lagen nog eens sterk. Het ontwerp van de fossielstructuur is van modeontwerpster Iris van Herpen en is met behulp van een digitale workflow vertaald naar een 3D-betonreliëf. Meer hierover in ‘Maakbaarheid – Parametrische reliëfstructuur’.




De kroongevel is opgebouwd uit een betonnen draagstructuur in de vorm van in elkaar grijpende moleculen, als een kantwerk van ovalen, ruiten en zeshoeken. Het gefilterde licht dat door de bladervormige ramen binnenvalt, versterkt de monumentaliteit van het gebouw. Het ontwerp bestaat uit twee lagen zeshoekig (honingraat) patroon die verschoven over elkaar liggen. De hoekpunten tuiten naar voren en geven een interessant reliëf aan de gevel. Door de verschuiving van de twee lagen ontstaan de bladvormige gevelopeningen.
Aan de binnenzijde is de gevel afgewerkt met eikenhouten panelen. Dit geeft een warme gloed aan het atrium. Het dak wordt gedragen door een staalconstructie. Deze staalconstructie loopt achter de betongevel langs en zorgt ook voor afdracht van windkrachten loodrecht op de gevel via ingestorte boutankers. De gevel is aan de bovenzijde gesloten (massief) vanwege de achterliggende dakconstructie.
De kroongevel is parametrisch ontworpen. Gelinkt met virtual reality is het ontwerp verder visueel uitgewerkt. De link met virtual reality maakte visuele beoordeling van varianten op werkelijke schaal mogelijk. Vervolgens zijn hierin nog een paar slagen gemaakt in parametrisch ontwerp (verschillende gebruikte software), waarbij ook de uitvoeringsaspecten meegenomen zijn.
In het ontwerp was de gevel maximaal 1 m dik bedacht voor een sterke reliëfwerking. Voor de uitvoerbaarheid en het vervoer (beperking transportbewegingen) deed de gevelconstructeur het voorstel voor een maximale dikte van 600 mm. De minimale dikte is 200 mm. Dit geeft een beperking in de dieptewerking van de gevel. De architect heeft geprobeerd met enkelvoudig gekromde vlakken het gewenste gevelbeeld te bereiken, maar hierdoor ontstond een ontsierende knik in het gekromde vlak en is er uiteindelijk gekozen voor het toepassen van dubbelgekromde vlakken om een vloeiende vorm te realiseren.
Ook vanuit maakbaarheid is ervoor gekozen om een gehele gevelopening in één paneel te vatten met kadervormende elementen. Hierdoor volgen de panelen de honingraatvorm. Elke zeshoek bestaat uit drie gevelkaders: twee gespiegelde staande bladvormen en een liggende. De stapeling van deze panelen gaat via een onzichtbare, ingestorte oplegnok. Hierdoor kunnen de verticale krachten goed worden afgedragen naar de kolommen die 6 m uit elkaar staan. In horizontale richting is dit een glijdende oplegging zodat krachten van temperatuurverschillen per element opgevangen kunnen worden.
In het ontwikkelproces van de gevel is de betonfabrikant nauw betrokken. Het digitale model is naar de mallenmaker gestuurd en op basis daarvan zijn de mallen vervaardigd met extreme vakkundigheid.
De gevel is gemaakt van beton met een toeslagmateriaal van Noorse hardsteen (een wit marmer). Deze heeft een natuurlijke schittering in zich. Het toeslagmateriaal is aan het oppervlakte zichtbaar gemaakt door de gevelelementen in de fabriek te zandstralen.
De schittering komt zelfs terug in de rode natuursteen: in de gebruikte travertin steensoort hebben zich in miljoenen jaren natuurlijke kristallen gevormd die voor een glinstering zorgen.
De expositieruimtes zien er vanaf de buitenzijde uit als vier verschoven, op elkaar liggende reusachtige plakken. Elke laag is zo hoog als de standaardhoogte van de museumzalen, 6,8 meter. In de doorsnede is te zien dat in een aantal zalen gebruik is gemaakt van anderhalve, of dubbele hoogte. De hoogste zaal is gedimensioneerd voor de lang gekoesterde wens van Naturalis om de beroemde vleesetende dinosauriër T-Rex Trix te kunnen opstellen.
Het zalenblok is opgebouwd uit drie zalen van 21 m per verdieping met daartussen telkens een strook van 6 m voor service (liften, toiletten etc.). De breedte van de zalen varieert met de hoogte, waarbij de zalen onderaan de bergvorm in de ontvangsthal dieper zijn dan die bovenin.
Het zalencomplex wordt ondersteund door grote V-kolommen op maaiveld. Deze kolommen zijn van hetzelfde beton met eenzelfde nabewerking als de kroongevel: gezandstraald beton met wit cement en toeslagmateriaal van Noorse hardsteen.
Voor de constructie van de berg van museumzalen is gekozen voor betonwanden omdat deze dunner zijn dan een constructie van stalen stijlen en paneelinvulling. Bovendien zijn de wanden dan massief en vlak en dus geschikt om aan beide zijden museumstukken op te hangen en daardoor ook flexibel in de aansluiting van binnenwanden, mocht de indeling in een later stadium wijzigen. Bovendien kunnen ze worden toegepast als wandligger.
De gietbouw dragende wanden, met voldoende openingen voor doorgang van bezoekers, zijn geplaatst op de kopgevels en tussen de kernen en de zalen in op een stramien van wisselend 21 en 6 m. De vloeren van de zalen hebben een overspanning van 21 m van wand naar wand, met aan de kopgevels een uitkraging van de stalen vloerliggers tot plaatselijk wel 7 m voor de uitstekende delen.
De langsgevel zowel aan de buitenzijde als aan de atriumzijde spant als wandligger van kernwand naar kernwand en/of kopwand. Deze wandliggers liggen parallel met de vloerliggers. Aan de atriumzijde zijn ook de trapdragers opgehangen tussen deze zelfde dragende wanden. Dit systeem is eerder door de architect en constructeur toegepast bij het Nederlands Intituut voor Beeld en Geluid in Hilversum.
Meer over de constructie van Naturalis is te vinden op Cementonline, Gebouw in vier enorme plakken.