ARCHEOLOGISCH MUSEUM, NATIONAAL RESERVAAT VAN PARACAS, ICA (PERU)
Auteur: Barbara Heijl
In het Nationaal Reservaat Paracas in Peru staat het archeologisch museum Muséo Sitio de Julio C. Tello. Het museum werd in 2007 verwoest door een aardbeving. Op de fundamenten van het oorspronkelijke bouwwerk is een nieuw gebouw opgetrokken. De geometrie van het museum staat in contrast met de glooiende lijnen van het omringende landschap. In kleur en textuur echter voegt de ambachtelijk vervaardigde gevel, van rood pleisterwerk en beton, zich naar de omgeving.
Nationaal Reservaat Paracas is het oudste nationale maritieme reservaat van Peru. Het ligt in de Zuid-Peruaanse provincie Ica en is opgericht in 1975. Het bestaat uit het schiereiland Paracas, kustgebieden met tropische woestijn en vele kilometers kustwateren. Het reservaat biedt onder andere ruimte aan vele soorten in het wild levende vogels.
Het belangrijkste doel van het reservaat is het behoud van het maritieme ecosysteem en de bescherming van het historisch cultureel erfgoed van oude inheemse volkeren, voornamelijk de Paracas-cultuur. Onderdeel hiervan is het archeologisch museum Muséo Sitio de Julio C. Tello, dat vlak bij de ingang in het reservaat staat.
Het museum is vernoemd naar de Peruaanse archeoloog Julio C. Tello, die grote ontdekkingen deed over de oude Paracas-cultuur. Al sinds 1965 staat het archeologisch museum in het reservaat. Doordat een aardbeving in 2007 het gebouw onherstelbaar had aangetast, is in 2011 gestart met de bouw van een nieuw onderkomen voor de collectie.
Zodoende kon het museum in 2016 weer open voor publiek. De compacte, rechthoekige vorm van het museum komt mede voort uit de contouren van het oorspronkelijke gebouw. Architect Jean-Pierre Crousse van Barclay & Crousse Architecture: “De nieuwbouw staat niet voor niets op exact dezelfde plaats. Een groot deel van de collectie van het museum is gevonden in de regio.”
Voor het bouwen van een museum op een andere plaats in het reservaat was daarom een extensief en kostbaar archeologisch onderzoek vereist geweest. Aangezien wij het gebouw voor een sober bouwbudget van 400.000 US$ moesten realiseren, hebben wij ervoor gekozen deze kosten te besteden aan de ruimtelijke kwaliteit van het gebouw.” De compacte, rechthoekige vorm van het museum komt mede voort uit de contouren van het oorspronkelijke gebouw.
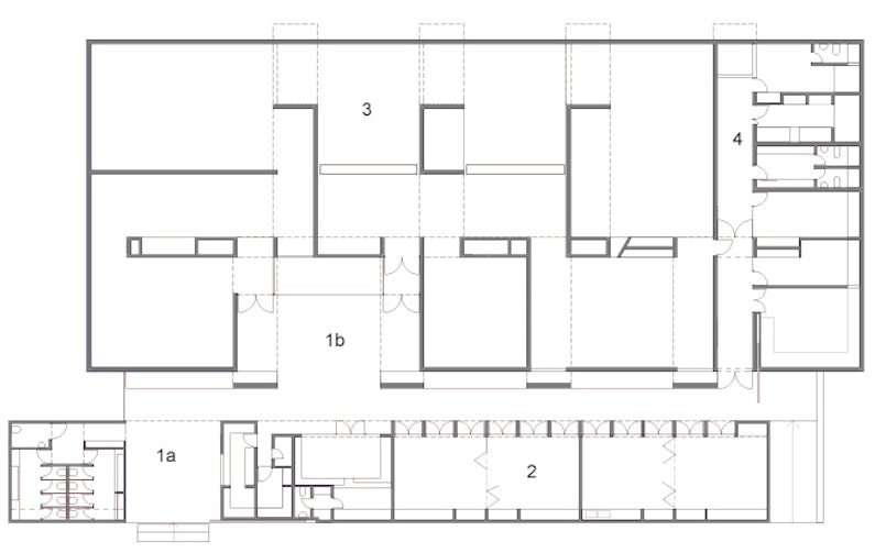
De nieuwbouw is programmatisch te splitsen in vier delen. De bezoekers betreden het gebouw via het ‘antropologische deel’. Dit bouwdeel staat volledig vrij van de rest van het gebouw. In het volume zijn, behalve de entree, ook workshopruimtes en toiletgroepen ondergebracht.
De route leidt daarna naar het ‘archeologische deel’ met tentoonstellingsruimten. Het derde programmaonderdeel wordt gevormd door de installatietechnische ruimte. Vaak zijn installaties weggestopt in de meest onooglijke ruimte van het gebouw. Hier heeft de architect ervoor gekozen de installaties te integreren in de exhibitieruimte en te gebruiken als beeldbepalend element.
Rechthoekige modules, gedeeltelijk verzonken in het dakvlak, voorzien de ruimte van indirect daglicht, natuurlijke ventilatie en koeling. Ze zijn geplaatst in de overgangsruimtes tussen tentoonstellingszalen. In het vierde en laatste bouwdeel zijn de overige voorzieningen, zoals de personeelsruimte ondergebracht. Deze vleugel grenst aan de tentoonstellingsruimte en is herkenbaar aan de afwijkende verdiepingshoogte.
Ook aan de buitenzijde vormen de modules voor klimaatbeheersing blikvangers. Het museum is van bovenaf zichtbaar vanuit nabijgelegen heuvels. Mede daarom is het dak vormgegeven als vijfde gevel. De langgerekte modules staan in dwarsrichting op het dak van de tentoonstellingsruimte.
De oriëntatie is afgestemd op de bezonning en de windrichting. Het patroon van het daklandschap is geïnspireerd op de textiel-patronen uit de Paracas-cultuur.
Aan de kopse kanten zijn de modules open en worden ze omkaderd door ranke, betonnen lijsten. Deze kaders kragen uit boven gesloten geveldelen van de begane grond. Het museum lijkt door deze grote kaders de woestijn in te kijken.
Het museum staat onbeschut in de woestijn en is daarom onderhevig aan sterke winden en langdurige, felle zonnestraling. De temperatuur is het gehele jaar wel vrij stabiel in het reservaat, het kwik blijft over het algemeen boven de 20 graden Celsius. Deze factoren zijn van invloed geweest op het ontwerp. “Het grootste deel van de gevel is bedekt met bestendig pleisterwerk van portland-puzzolaancement (type IP, volgens ASTM C595). Het is onder andere goed resistent tegen de invloed van sulfaat uit de woestijnbodem.
Het puzzolaan, gewonnen uit vulkanische rotsen, geeft het cement de rode kleur door de aanwezigheid van ijzerdeeltjes in de chemische samenstelling. Er zijn geen pigmenten toegevoegd. Na verloop van tijd zal het pleisterwerk daarom onder invloed van oxidatie iets donkerder worden van kleur.
Het pleisterwerk is in één laag van ongeveer 2 cm dik handmatig aangebracht. We wilden geen spiegelgladde afwerking, maar het handwerk van Peruaanse vakmannen laten zien. De gemêleerde, terracotta tinten refereren bovendien aan de historische, keramische voorwerpen, ‘Huecos’, aanwezig in de expositie”, aldus Crousse.
De gevel van het antropologisch deel is niet bepleisterd, maar van onbehandeld beton. Het bouwdeel met de entree is daardoor extra herkenbaar. Voor het betonmengsel is hetzelfde portland-puzzolaancement gebruikt als voor het pleisterwerk. Daarom heeft de betonnen gevel eveneens een rode kleur.
De textuur van de bekisting is duidelijk zichtbaar in het betonoppervlak. De houten bekisting is met de hand gemaakt en met stalen spankabels en houten ribben gefixeerd. Het betonmengsel is vervolgens op ambachtelijke wijze gestort, met behulp van een takel, ladders en emmers.
Het beton is verdicht met trilnaald. Voor een kubieke meter beton is 375 kg cement, 230 l water, 735 kg zand en een ton grind, met een diameter van ongeveer 2,5 cm, gebruikt. De druksterkte na een maand is 390 kg/cm².
De gevel van het antropologisch deel is niet bepleisterd, maar van onbehandeld beton. Het bouwdeel met de entree is daardoor extra herkenbaar. Voor het betonmengsel is hetzelfde portland-puzzolaancement gebruikt als voor het pleisterwerk. Daarom heeft de betonnen gevel eveneens een rode kleur.
De textuur van de bekisting is duidelijk zichtbaar in het betonoppervlak. De houten bekisting is met de hand gemaakt en met stalen spankabels en houten ribben gefixeerd. Het betonmengsel is vervolgens op ambachtelijke wijze gestort, met behulp van een takel, ladders en emmers.
Het beton is verdicht met trilnaald. Voor een kubieke meter beton is 375 kg cement, 230 l water, 735 kg zand en een ton grind, met een diameter van ongeveer 2,5 cm, gebruikt. De druksterkte na een maand is 390 kg/cm².
Om een veilige draagconstructie te bouwen, in een gebied met risico op hoge seismische belastingen, is het gebouw zo symmetrisch mogelijk uitgevoerd, met overhoekse stabiliteitsvoorzieningen. Het antropologisch bouwdeel is geheel in het werk gestort. Het bouwdeel met de tentoonstellingsruimte is opgebouwd uit een hybride hoofddraagconstructie. Het heeft dragende wanden van metselwerk met holle bakstenen, aangevuld met een aantal betonnen schijven, geplaatst in de lengterichting van het gebouw.
De beganegrondvloer is in situ gestort. Voor het dak zijn betonnen balken en platen van licht beton gebruikt. De modules voor klimaatbeheersing zijn vervolgens opgebouwd uit een betonnen frame van balken en kolommen. De wanden van de modules zijn gevuld met metselwerk. Om een aantal grote overspanningen ter plaatse van kozijnen te overbruggen, zijn stalen kolommen geplaatst, gevuld met beton. De dragende buitenwanden zijn ongeveer 250 mm dik en zijn ongeïsoleerd vanwege de relatief constante buitentemperatuur.
Op het dak is wel een laag natuurlijke isolatie aangebracht van modder en schelpen om het gebouw voldoende koel te houden.
Een grillig patroon, gevormd door vlakken van grijs beton, kenmerkt de beganegrondvloer. Deze vloer is zowel binnen als buiten toegepast en vormt een verbindend element tussen de bouwdelen. Ook de wand naast de entreedeur van de tentoonstellingsruimte is afgewerkt met hetzelfde cement. Daardoor lijkt de vloer door te lopen in de wand. De betonnen beganegrondvloer is net als de wanden ambachtelijk vervaardigd. Op de verdichte bodem is eerst een vloer van 150 mm beton gestort op een bodemafdekfolie. De vloer is gemaakt van grijs portlandcement (type I). De vloerdelen zijn na het storten handmatig gepolijst met een houten troffel, net zoals het pleisterwerk van de gevel. Er is gekozen voor het onregelmatige vloerpatroon omdat veel dilataties eventuele breuklijnen als gevolg van kleine aardbevingen kunnen voorkomen.
Vooraf is besloten om imperfecties in de afwerking te accepteren, omdat het past bij de ambachtelijke wijze waarop het museum is gebouwd. Er zijn vanuit budgettaire overwegingen geen mock-ups of proefstukken gemaakt van het pleisterwerk of het zichtwerk in beton. Wel had de architect deze typen cement in andere projecten al eerder toegepast. Ook is de werkwijze nauwgezet bepaald, in samenwerking met de uitvoerende partijen. Mede door deze aanpak was het mogelijk het museum te realiseren binnen budget en te voorzien van extra royale tentoonstellingsruimtes.
Nationaal Reservaat Paracas is het oudste nationale maritieme reservaat van Peru. Het ligt in de Zuid-Peruaanse provincie Ica en is opgericht in 1975. Het bestaat uit het schiereiland Paracas, kustgebieden met tropische woestijn en vele kilometers kustwateren. Het reservaat biedt onder andere ruimte aan vele soorten in het wild levende vogels. Het belangrijkste doel van het reservaat is het behoud van het maritieme ecosysteem en de bescherming van het historisch cultureel erfgoed van oude inheemse volkeren, voornamelijk de Paracas-cultuur. Onderdeel hiervan is het archeologisch museum Muséo Sitio de Julio C. Tello, dat vlak bij de ingang in het reservaat staat.