Ingebed in natuur

ISSA MEGARON, VIS (KROATIË)

Meer specs

Auteur: Cindy Vissering

Villa Issa Megaron is gelegen op het eiland Vis, 80 km voor de kust van Kroatië in de Adriatische Zee. Vanuit historische verwijzingen is de omgeving van deze villa vormgegeven, zonder de typologie letterlijk na te bootsen. De betonnen banden liggen in het landschap als typisch mediterrane stenen wallen die de grond in terrassen vasthoudt. De terrassen zorgen voor bruikbaar oppervlak, voor begroeiing, maar ook voor wonen en spelen. Elke laag heeft een eigen functie, van zwembad, loungeterras tot binnenruimtes. De villa zelf ligt, beschermd als een prehistorische grot, ingebed in de helling.

Villa Issa Megaron is bedoeld als tijdelijk privéverblijf voor een hele familie en is voorzien van alle gemakken. Vanuit de loungekeuken met brede glazen schuifwand loop je via een brede trap vloeiend via het terras richting het lager gelegen zwembad. Het zwembad ligt zonder reling tot aan de rand van het terras, waar zich een vrij uitzicht over de helling naar beneden ontvouwt.

Eeuwenoude klimaattechnieken

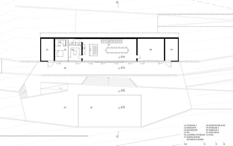
Het ontwerp is gebaseerd op het principe van het Megaron huis van Socrates, ook wel het eerste passiefhuis genoemd. Als een grot op de zuidelijke helling staat de villa open naar het zuiden en wordt beschermd door de grond aan de noordkant. Het Megaron-principe in de Griekse architectuur stond bovendien voor een centrale, langgerekteruimte die met natuurlijke ventilatie een goed binnenklimaat had. Kleinere (dienst)ruimtes zijn om de grotere middenruimte heen gepositioneerd.

Het middelste gedeelte van de langwerpige plattegrond is opengewerkt, hier bevinden zich de leefruimtes met breed uitzicht over het landschap. In de vleugels, die meer ingebed zijn in het landschap, bevinden zich de ondersteunende ruimtes en de zeven slaapkamers met en-suite badkamers en soms een kleine werkruimte.

De villa is volledig zelfvoorzienend gebouwd en energieneutraal, omdat er geen voorzieningen beschikbaar waren. De gematigde regenval wordt opgevangen in reservoirs en door filtratie geschikt gemaakt als drink- en zwemwater. Om het water te verwarmen wordt het langs zonnecollectoren gevoerd. Zonnepanelen zorgen voor de energie. De grote overstekken zorgen ervoor dat de zon in de zomer geweerd wordt en er in de winter onderdoor schijnt. De thermische massa zorgt voor een faseverschil in de warmteopbouw, waardoor er met weinig middelen een goed klimaat mogelijk is.

Koude lucht wordt aangetrokken vanonder de schaduw van de nabije olijfbomen, of de lucht wordt over het gefilterde water of zwemwater aangevoerd. Dit is het effect van adiabatische koeling, ook wel verdampingskoeling genoemd, het is koeling door het verdampen van water. De verdampingsenergie wordt onttrokken aan de lucht met als gevolg dat de lucht afkoelt. Het is een eeuwenoude techniek die al door de oude Egyptenaren werd toegepast.

Lokaal beschikbare grondstoffen

De toevoer van materialen en machines op het eiland Vis is beperkt, omdat de bouwlocatie niet was aangesloten op de lokale wegen van het eiland. Er is daarom zoveel mogelijk gebruik gemaakt van de beschikbare grondstoffen op de locatie zelf.

De draagstructuur van de villa is van ter plaatse gestort, gewapend beton, sterkte C20/25. Beton is een makkelijk toegankelijk materiaal op afgelegen plaatsen, het gebruikte zand en grind komt immers van het eiland zelf en er is geen groot/bijzonder materieel nodig. Dit is overal in het afgelegen mediterrane gebied een goede, duurzame manier van bouwen.

Voor de gevel is steen uit de omgeving gebruikt. Deze keien komen vooral van de oudere, niet meer functionele muren in het landschap van de locatie, die vervangen zijn door de nieuwe wanden.

Doordat de gebruikte materialen voortkomen uit de directe omgeving, is de robuustheid van het ontwerp groot. Het onderhoud aan deze materialen is gering en zij voegen zich naadloos in het beeld van de omgeving.

Het interieur is om dezelfde redenen bewust sober gehouden. Er is geen afwerking van de constructieve wanden, alleen de centerpengaten zijn opgevuld met een betonprop.

Video Issa Megaron

Groen rondom

De grond is opnieuw gerangschikt in de terrassen aan beide zijden van de toegangsweg, en boven op het dak als begroeid dak. Als substraat is de lokale grond met vooral heel veel steenslag toegepast

Het grondpakket op de betonconstructie is 18 tot 20 cm dik. Voor mediterrane planten die zeer ondiep wortelen is dit dik genoeg om op te groeien. Als straks de inheemse plantensoorten het terrein weer in gaan nemen, zal de villa geheel in het groen zijn opgenomen.

Ook interessant

Duurzaam
Projecten
HENN Architekten | Geen staal en minder cement door staalwapening te vervangen door wapening van koolstofvezels.
Duurzaam
Projecten
Orange Architects | Woongebouw Jonas is beloond met BREEAM Outstanding, mede door de zeer duurzame wijze waarop beton is toegepast.
Duurzaam
Projecten
Koen van Velsen architecten | Sportcentrum Feijenoord is allesbehalve doorsnee, door een vernuftige combi van duurzame, esthetische en technische keuzes.