Duurzaam bouwen is geen puntenverzameling

BASISSCHOOL IKC ZEVEN ZEEËN, AMSTERDAM

Meer specs

Auteur: Barbara Heijl

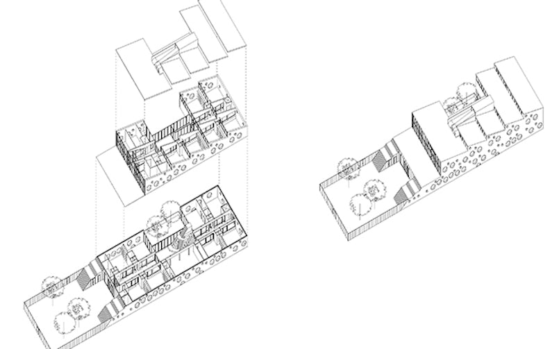
Basisschool IKC Zeven Zeeën is niet te missen bij een wandeling door de Banne in Amsterdam Noord. Het gebouw is onderdeel van een stadsvenieuwingsplan om de naoorlogse wijk te verbeteren. De warmrode gevel van geprefabriceerd beton met speels geplaatste ronde kozijnen, trekt de aandacht. Bovendien is het één van de eerste scholen in Nederland die energieneutraal is gebouwd.

Duurzaamheid met klasse

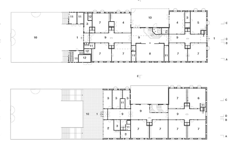
IKC Zeven Zeeën is één van de eerste energieneutrale scholen die in Nederland is gerealiseerd (EPC =0). “Duurzaam bouwen is geen puntenverzameling. Als team hebben we gewerkt vanuit een duurzaam concept en het doorgevoerd in alle delen van het gebouw,” aldus Gianni Cito van Moke Architecten. De basis is een goede thermische schil. Verder heeft het gebouw, stadsverwarming, een ventilatiesysteem met warmteterugwinning, LED-verlichting en staan er 324 PV-panelen op het dak. Het gebouw scoort zeer goed op het beoordelingssysteem van gezonde schoolgebouwen, Frisse Scholen.

Waarom in beton?

“In het stedenbouwkundig plan was een bakstenen gevel voorgeschreven. Toch heb ik vrij vroeg in het proces voorgesteld het gebouw in beton uit te voeren,” vertelt Cito. Het warmteaccumulerend vermogen van beton, besparing op onderhoud, de grote maatnauwkeurigheid en de korte bouwtijd die met prefab beton mogelijk was, hebben tot deze keuze geleid.

Vindingrijk met krap budget

Cito: “Omdat de geveldelen speciaal zijn ontwikkeld voor deze school, denken mensen al snel dat het een duur gebouw is. Dit is niet waar. We hebben deze school kunnen maken met een beperkt budget, doordat de hoofdopzet eenvoudig is. Zowel de constructie als de gevel bestaan uit geprefabriceerd beton, waardoor logische aansluitingen van bouwdelen ontstaan. De heldere opzet met veel repetitie heeft kosten bespaard en gaf onder meer ruimte een bijzondere gevel te maken.”

Van tekening tot element

De tekeningen van de architect zijn door de producent omgezet in een BIM-model. Vervolgens zijn de mallen 3D gefreesd uit multiplex en secuur afgewerkt met epoxy. De buitenranden zijn vervaardigd uit betonplex. Eerst zijn de binnenspouwbladen gestort. Terwijl deze werden geplaatst in Amsterdam, zijn tegelijkertijd de buitenspouwbladen gerealiseerd in de fabriek. Over ieder detail in de gevels is van tevoren nagedacht. Zo is bijvoorbeeld de zonwering geïntegreerd en zijn sparingen gemaakt voor subtiele lekgootjes van de kozijnen.

De kracht van kennis delen

IKC Zeven Zeeën is de eerste school uit geprefabriceerd beton van de hand van Moke Architecten. Het resultaat is vernieuwend en gedurfd. Cito: “Het doet er niet toe of je eerder met een bepaald product hebt gewerkt. Het is zaak je oprecht te verdiepen in de materie en je goed te laten adviseren door mensen met kennis van zaken. We hadden een geweldig bouwteam.”

Downloads

Ook interessant

Duurzaam
Projecten
DMOA-architecten | Eyecatcher van 'Kruul', een energiezuinig kantoor in Leuven (B), is de prachtige gevel van stampbeton.
Duurzaam
Projecten
Nemesi & Partners, Rome | Vertakte structuur opgebouwd uit meer dan 700 uniek gevormde panelen in wit luchtzuiverend beton.
Duurzaam
Projecten
Xaveer De Geyter Architects | Beton speelt een sleutelrol in het duurzame ontwerp voor het nieuwe provinciehuis in Antwerpen.