Dunne balkonrand veilig op grote hoogte

AMSTEL TOWER, AMSTERDAM

Meer specs

Auteur: Foka Kempenaar

Dat beton zowel esthetisch als constructief een hoofdrol kan vervullen, bewijst de Amstel Tower. Want achter de fraaie spierwitte, strak uitgelijnde rondingen gaat een ingenieuze betonnen constructie schuil. Naast station Amsterdam-Amstel is deze dertig verdiepingen tellende woon- en hoteltoren opgeleverd (vooralsnog de hoogste binnen de ring). Vanaf de grond meet deze gracieuze betonnen dame exact 105 m en zij voegt hiermee een nieuwe dimensie toe aan de skyline van de stad.

amsteltoren gevel beton en balkons overzicht
Groot voordeel van de rondingen is dat deze de schaduwwerking naar het omliggend terrein beperken (foto: Sebastian van Damme)

Riante plint en hoedje voor stabiliteit

De riante plint oogt niet alleen uitnodigend, maar heeft ook een belangrijke functie met het oog op de windbelasting. “Door het bredere basement waar het hotel in zit, krijg je wat vaak wordt aangeduid als het ‘Eiffeltoren-principe’; bovenaan smal, naar onderen toe steeds breder, wat flink bijdraagt aan de stabiliteit van het project”, licht architect Paul Stavert (Powerhouse Company) toe.

De stabiliteit is bovendien verder verbeterd door de wanden van de bovenste bouwlaag bewust helemaal uit te voeren met massief betonnen wanden. Dit betonnen ‘hoedje’ zorgt voor extra stijfheid.

Bijzondere tunneltechniek

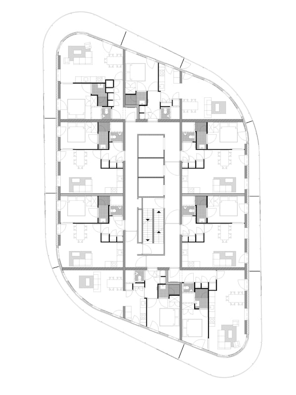
De plint van het project en de eerste zes lagen van de toren zijn traditioneel in het werk gestort. Ze vormen samen een hotel, met 186 kamers. Boven het hotel, dus vanaf de zevende tot en met de dertigste verdieping, bevinden zich de woningen die geheel zijn gerealiseerd met tunnelbekisting. Zo kon het gebouw conform planning met één verdieping per week groeien. Het project kende een lastige start, omdat in 2013 de Amsterdamse woningmarkt helemaal stil lag door de bouwcrisis. Een van de manieren om de bouw van de Amstel Tower qua kosten onder controle te krijgen, was door te kiezen voor tunnelen.

bouw amsteltoren bovenste verdieping betonconstructie
In het betonnen hoedje bovenop de kern van het gebouw bevinden zich de installaties en luchtbehandelingskasten (foto: Mariska Striebel)

Strakke lijnen

De ophangconstructie van de balkons is meegestort in de tunnelbekisting. Een systeem dat uit de koker kwam van de aannemer. Daardoor was geen tweede bouwstroom en steiger nodig om de balkonplaten op te hangen.

Vervolgens rees een volgend vraagstuk: hoe kun je tunnelen en tegelijkertijd de beoogde afgeronde hoeken realiseren? Dit heeft de constructeur handig opgelost met een ongebruikelijke techniek: de tunnel is in de lengterichting van het gebouw gebruikt. Om ervoor te zorgen dat de tunnel wel uit kon rijden, zijn de dragende penanten, die je verder overal in de gevel terug ziet komen, op de kopse zijden weggelaten.

Kelder is fundering

Normaal gesproken vraagt een project zoals dit, een ruim 100 m hoge toren met flinke funderingskrachten, om een enorm fundatieblok en bouwput. Maar door het hoge grondwaterpeil op de bouwlocatie zou je dan onder andere damwanden en een stalen bouwput nodig hebben. Een technisch lastige en dure opgave, mede omdat het gebouw vlak naast het bestaande spoor- en metrotracé moest komen.

De oplossing is gevonden door de funderingspalen rechtstreeks onder de kelderwanden te plaatsen. De bouwput is met een open ontgraving en zonder bemaling uitgevoerd. Deze allesbehalve standaardoplossing betekende een kostenbesparing, die onder andere ten goede kwam aan de realisatie van de bijzondere gevel en balkons.

staalwapening hamerstukken amsteltoren bouw
De staalbetonkolommen die zijn ontworpen voor de grote openingen onderin het gebouw, zijn voorzien van stalen hamerstukken. Zo wordt de belasting aan de boven- en onderzijde ingeleid op de aansluitende constructie (Foto: IMd Raadgevende Ingenieurs)

Titanium wit

De betonnen gevel en de sierlijke balkons van de Amstel Tower zijn verfraaid met geanodiseerd aluminium en glas. Het beton is spierwit gemaakt met behulp van een toeslag van titaandioxide. Volgens de architect een zeer bewuste esthetische keuze, omdat voorbijgangers van onderaf vooral tegen de onderzijde van de balkons van de betonnen dame aankijken. Bovendien wordt met de ronde vorm benadrukt dat het hier – anders dan aangrenzende kantoorgebouwen – een complex met een woonfunctie betreft.

Ook interessant

Functioneel
Projecten
Rudy Ricciotti | Voor het innovatieve ontwerp van het TGV-station Nantes liet architect Rudy Ricciotti zich inspireren door de natuur.
Functioneel
Projecten
Studio Libeskind | Beton geeft vorm aan de complexe en dynamische gebaren van congrescentrum MICX.
Functioneel
Projecten
Bekkering Adams Architecten | Villa het Tolhuis excelleert in zorgvuldig geïntegreerde detaillering in beton dankzij geduldig ontwerpproces.