Een schone zaak

VILLA HET TOLHUIS, ZALTBOMMEL

Meer specs

Auteur: Coen Smets

Het ontwerp- en bouwproces van een bijzondere verbouwing van het voormalige Tolhuis in Zaltbommel heeft een behoorlijke tijd geduurd (1999-2015). Dit is echter goed te verklaren. De opdrachtgevers en bewoners van het woonhuis met atelier hebben het ontwerp van Bekkering Adams Architecten namelijk zelf uitgevoerd. Alles wat er komt kijken bij in het werk gestort beton, moest worden geleerd. Het unieke proces heeft eraan bijgedragen dat alle voorzieningen zorgvuldig zijn geïntegreerd in het beton. Villa het Tolhuis ontving voor het knappe werk een nominatie voor de Betonprijs 2015.

Krachtige vorm

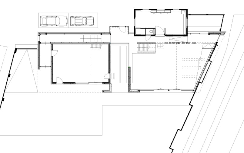
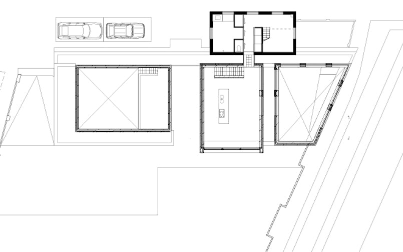
Het originele Tolhuis dateert van 1835 en ligt direct aan de Steenweg in Zaltbommel. In de loop der jaren waren een aanbouw, een schuur en tuinmuren toegevoegd aan het pand. De structuur van verschillende bouwdelen vroeg om een herijking van het volume en een uitbreiding met verschillende woonfuncties. In het nieuwe ontwerp is de oude aanbouw gesloopt en zijn alle nieuwe bouwonderdelen samengebracht in één ommuurd volume. Hierdoor heeft de uitbreiding een krachtige vorm en komt het vrijgemaakte Tolhuis optimaal tot zijn recht.

Verbindende gang

De 30 m lange gang, die achter het oude Tolhuis langs loopt, verbindt de verschillende verblijfsruimten en functioneert gelijktijdig als geluidsbuffer. Dwars op deze gang zijn de grotere en kleinere verblijfsruimten georganiseerd, met elk hun eigen karakteristiek en atmosfeer. In het nieuwe deel bevinden zich beneden de woonkamer, patio en werkruimte, en boven de keuken. In het oude deel is op de benedenverdieping het atelier ondergebracht en op de bovenverdieping de slaapkamer en badkamer.

Geïntegreerd precisiewerk

Mede vanwege de geluidsbelasting en de constructieve eigenschappen van het materiaal, is het huis gemaakt van beton. De mogelijkheden van het materiaal zijn optimaal benut. Op een enkele prefab balk en de breedplaatvloeren na, is al het beton in het werk gestort. Details en installatietechnische voorzieningen zijn in het beton geïntegreerd en met grote precisie ontworpen en uitgevoerd. Niet alleen de eikenhouten traptreden, wandcontactdozen en verlichtingsarmaturen, maar ook een centraal stofzuigsysteem en vloerverwarming. In één wand is wandverwarming toegepast. Deze onder een hoek geplaatste ‘knuffelwand’ tussen de trap en de behaaglijke werkplek in de woonkamer heeft een ruwe, levendige textuur en is warm van kleur. In al het schoonbeton maken de kistnaden, het patroon van de centerpennen en de specifieke esthetische eigenschappen van het materiaal onderdeel uit van de compositie.

Constructieve sculptuur

In de zijmuur tussen de woonkamer en patio is over de gehele overspanning een groot raam geplaatst. Hierdoor wordt een groot deel van de krachten overgedragen naar de wanden aan de centrale trap en een bijzondere W-vormige wand die gang en woonkamer scheidt. De hele betonnen sculptuur werkt zodoende constructief samen.

Ook interessant

Functioneel
Projecten
Snøhetta | 5 m onder de zeespiegel dineren? Dat kan in Under, het eerste onderwaterrestaurant van Europa in Lindesnes, Noorwegen.
Functioneel
Projecten
Arne Henriksen and MDH | In Løren, een populaire woonwijk in het Noorse Oslo, is een metrostation gebouwd in schoonbeton en geborsteld staal.
Functioneel
Projecten
Peter Haimerl Architektur | Compositie van geometrie en betonsamenstelling geeft uitmuntende akoestiek in Concertgebouw Blaibach.