Vloeiende vormen in wit beton

DRENTS MUSEUM, ASSEN

Meer specs

Auteur: Caroline Kruit

Het Drents Museum in Assen is gerenoveerd en uitgebreid met een deels ondergrondse vleugel. De bovengrondse centrale entree van het museum is verplaatst naar het monumentale koetshuis, dat hiertoe een meter werd opgetild en op een glazen plint is gezet. Vanuit hier wordt de bezoeker via een majestueuze wenteltrap verleid naar een nieuwe wereld, zes meter onder Assens peil. Deze bestaat uit zachte en vloeiende vormen in eenduidig wit, met statige sculpturale kolommen van massief beton.

ronde liftkern en witte kolommen drents museum
Zicht op de entree en de doorgaande route die zich onder het maaiveld bevindt (foto: J. Collingridge)

Sculpturale kolommen

Grillig gevormd, als boomstammen die uit de aarde spruiten en vertakken naar de vloer, zijn de acht kolommen onder het koetshuis de blikvanger van deze doorgangsruimte. Door de nieuwe glazen plint onder het opgevijzelde koetshuis valt het daglicht op de benedenvloer. “Licht is een heel belangrijke factor in het ontwerp”, vertelt Frank Huibers, projectarchitect bij het bureau van Erick van Egeraat. “Voor de oriëntatie en de relatie binnen-buiten is daglicht gedoseerd ingezet.”

polyester

De kolommen zijn in het werk gestort met behulp van een gesegmenteerde bekisting van polyester. In de eerste tekeningen is uitgegaan van een stalen buiskolom met een betonnen schaal eromheen. De architect had echter liever een massieve kolom, die bij aanraking geen holte kan verraden.

Vloeiende ornamentiek

De gewenste vorm van de kolommen is door het architectenbureau uitgetekend in een 3D-model. Hierop is een mal gemaakt in negen segmenten. De diameter van de kolommen is circa 300 mm. Over de volledige lengte van de kolom is een kooiwapening toegepast. Aan het betonmengsel zijn polypropyleenvezels toegevoegd om haarscheuring aan het oppervlak te voorkomen. Met de mallen zijn de kolommen gestort tot het niveau van het (verlaagde) plafond.

polystyreen

“Al voor de aanbesteding hebben we de details voor de verschillende constructie-elementen vastgelegd”, vertelt Huibers. “Daarbij is ook aangegeven hoe we de overgangen wilden vormgeven. Bij de aansluiting van de kolommen op het plafond is bijvoorbeeld gewerkt met enorme stukken polystyreen, die op onze aanwijzingen in CAD zijn gefreesd en als vulling zijn gebruikt. De stukadoor heeft er vervolgens één geheel van gemaakt. En ja, daar zitten we dan bovenop.”

renovatie drents museum verbouwingsoverzicht
Het koetshuis is in een stalen korset gehesen en letterlijk 'aan de kant gereden' om de ruimte voor de nieuwe expositievleugel te ontgraven (foto: designed by Erick van Egeraat)

Koetshuis tijdelijk geparkeerd

Om de nieuwe entree te kunnen maken, is het koetshuis tijdelijk ‘geparkeerd’ op een andere locatie op het terrein. Vervolgens is in fasen en met verschillende technieken de ruimte voor de ondergrondse expositie ontgraven. Dicht bij de monumentale gebouwen van het gerenoveerde Drents Museum Assen zijn de meest geavanceerde technieken voor fundering en ontgraving gebruikt. Waar het kon, is een traditionele bouwput gemaakt.

Laag en voorzichtig

Voor de uitbreiding bestond het Drents Museum uit een verzameling van antieke gebouwen, waaronder de restanten van een kloostercomplex, een koetshuis, een drosthuis en het voormalige provinciehuis. De route door het museum was “een kwestie van kruip door, sluip door”, zo vertelt Huibers.

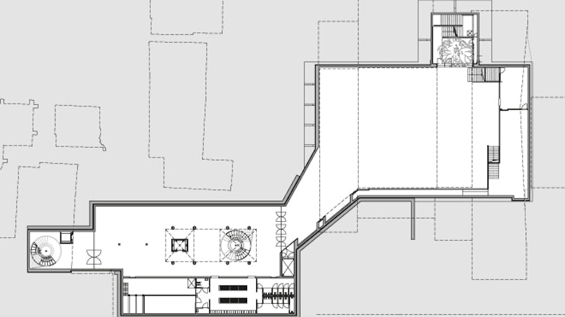
plattegrond drents museum met uitbreiding
Plattegrond ondergronds gedeelte. Linksonder de nieuwe entree onder het koetshuis en rechts de nieuwe ondergrondse zaal.

kolomloze expositieruimte

De ambitieuze plannen van het museum bleken niet te realiseren binnen het bestaande gebouwenweefsel. “In zijn eerste schets maakte Erick duidelijk dat in zijn visie de oplossing voor de logistieke puzzel en de uitbreiding van het museum vooral beneden maaiveld moesten worden gezocht: laag en voorzichtig. Zo is het ook geworden”, aldus Huibers. In het ontwerp is een nieuwe route gemaakt en een ondergrondse, open en kolomloze expositieruimte van ruim duizend vierkante meter toegevoegd.

Ook interessant

Esthetisch
Projecten
Wingårdhs | De gevel met glazen potjes van de uitbreiding van de Liljevalchs Kunsthal maakt het gebouw zelf tot een kunstwerk.
Esthetisch
Projecten
HilberinkBosch architecten | Lokaal duinzand en duinglooiing bepalen de uitstraling van deze duinvilla die verbinding aangaat met de natuur.
Esthetisch
Projecten
De Kort Van Schaik | Een ‘bontjas van beton’, een huis waarin je leeft met de natuur en dat tegelijk beschermt tegen de elementen.