Ondergronds beton

METROSTATION LØREN, OSLO (NOORWEGEN)

Meer specs

Barbara Heijl, april 2018

Løren, een voormalig industriële en militaire zone in het Noorse Oslo, is uitgegroeid tot een populaire woonwijk midden in de stad. Ter bevordering van de gebiedsontwikkeling is er een metrostation gebouwd. Het station ligt 27 m onder de grond en heeft twee ingangen. De geschiedenis van het gebied heeft bijgedragen aan de materiaalkeuze; schoonbeton en geborsteld staal geven het metrostation een robuuste, industriële uitstraling.

Uitgangspunten aanscherpen

“We hebben via deelname aan een competitie de opdracht voor het ontwerpen van het metrostation verkregen”, aldus Helge Lunder, architect MDH arkitekter. De positie van het nieuw te bouwen ondergrondse station met de twee entreegebouwen was op voorhand vastgesteld op basis van een technische rapportage. Factoren zoals geplande bouwprojecten op en naast het station, de ligging van het bestaande metronetwerk, de curve van belendende tramlijnen en de geologische samenstelling van de bodem, zijn meegenomen in het vooronderzoek. Lunder: “Speerpunt van ons ontwerp was het maken van een veilige en ruimtelijk interessante route vanaf de entree naar het ondergrondse perron. Om daglicht zo veel mogelijk te kunnen benutten, hebben we de route per roltrap gespreid in drie delen. Hoewel daardoor een aantal uitgangspunten van het technisch rapport op de proef zijn gesteld, heeft het idee bijgedragen aan het winnen van de competitie.”

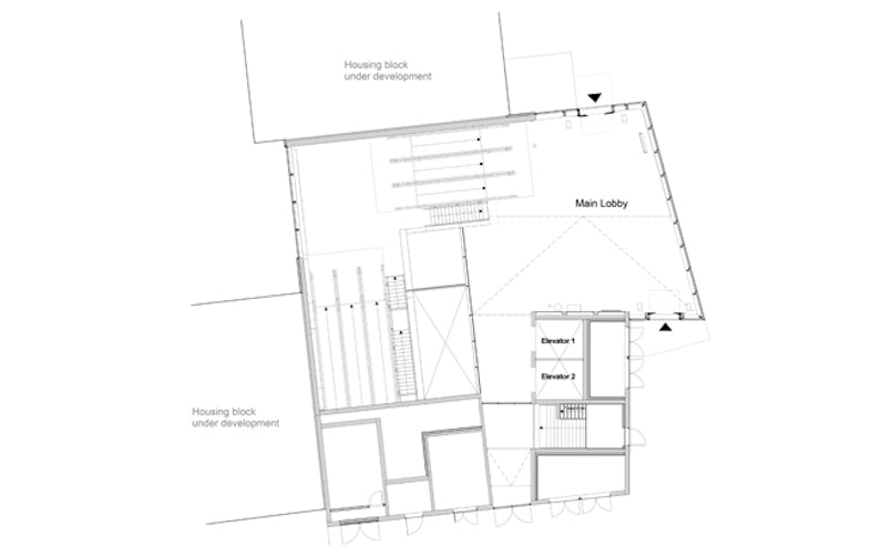
Metrostation als machine

Als een reusachtige machine vervoert metrostation Løren reizigers van boven naar beneden en visa versa. Het perron is bereikbaar met trappen, roltrappen en liften, vanuit twee entreegebouwen. De hoofdentree, de oostingang, bestaat uit een open, kolomvrije ruimte, overdekt met stalen vakwerkliggers en lichtstraten. Dankzij de daklichten en grote raampartijen is de stationshal ruim voorzien van daglicht. Om daglicht dieper te laten doordringen in de gewelven van het station, is centraal in de stationshal een vide geplaatst. Roltrappen, onderling verbonden met doorgangen, zorgen voor een gevarieerde ruimtelijke hoofdroute op weg naar het metrostelsel. De route van reizigers naar het perron start in de stationshal met wanden van wit in het werk gestort beton. Daar dalen roltrappen af in een tunnel en doorgang bekleed met geborsteld staal. De onderste, lange roltrap, overkoepeld met stalen beplating, is voorzien van glazen puien aan weerszijden. De puien begeleiden de overgang van de roltraptunnel naar het perron. De technische installaties, ter ondersteuning van het spoor, maken een belangrijk deel uit van het station. Ze zijn geplaatst in ongeveer honderd nissen, zij zijn niet publiek toegankelijk.

Verbinding met materiaal

De materiaalkeuze kwam deels voort uit de bouwtechnische uitgangspunten. De twee entreegebouwen zijn opgebouwd vanuit bouwputten. Beton was zodoende het meest voor de hand liggende constructiemateriaal. “Omdat beton een belangrijke constructieve functie vervult, wilden we zo veel mogelijk van de betonnen structuur blootleggen. Wegens akoestische eisen was het niet overal wenselijk om het betonoppervlak van de draagconstructie onbedekt te laten. Daarom hebben we ook stalen wand- en plafondbekleding toegepast. Dit materiaal leende zich goed voor het integreren van akoestische elementen en verlichtingsarmaturen.” Het staal is geborsteld en heeft daardoor een zeer mat oppervlak. Het matte staal benadert de kleur van het onbehandelde beton. Doordat kleur en textuur goed op elkaar zijn afgestemd, dragen de materialen bij aan de samenhang tussen de verschillende stationsruimtes.

Bergtunnel

De tunnel is gerealiseerd met de zogenoemde schildmethode, waarbij de tunnel onder de grond wordt gebouwd met een tunnelboormachine. Om de overtollige grond te verwijderen is gebruikgemaakt van expolosieven. Deze manier van bouwen van bergtunnels komt in Noorwegen veel voor. De gewelfde tunnel is daarom niet voorzien van een verlaagd plafond, maar slechts bedekt met een folie en een laag spuitbeton in diepblauwe kleur, om de rondingen te accentueren. Een ander beeldbepalend element op het perron is de luchtbehandelingsinstallatie. De grote roestvast stalen kanalen dragen bij aan robuuste uitstraling van het station.

Schone constructie

De hoofddraagconstructie van de entreegebouwen bestaat hoofdzakelijk uit beton en is opgebouwd vanuit diepe bouwputten. Zowel in situ beton als prefab beton is gebruikt. De draagconstructie van de niet-publieke ruimtes is gemaakt van geprefabriceerd beton met sterkteklasse B35/M60. Al het schoonbeton is in het werk gestort. Vanwege de beperkt beschikbare ruimte tussen de beoogde betonnen wanden en de rotswanden, ongeveer 160 mm, is een stalen systeembekisting gebruikt. Er is gekozen voor een zelfverdichtend betonmengsel, omdat op sommige plaatsen zeer zware wapening is toegepast. Het is wit beton met sterkteklasse B45/M45. Een van de meest uitdagende wanden om uit te voeren, was de westwand van het hoofdentreegebouw. Deze wand overspant zowel 20 m roltraptunnel en fungeert bovendien als fundering van een appartementencomplex van zeven verdiepingen. Voor deze wand is zowel traditionele stalen wapening als voorgespannen wapening gebruikt. Bij het verankeren aan de rotswand is gezorgd dat de betonnen wand aan één zijde horizontaal kan werken. De noordwand die hieraan grenst, staat op stalen platen op de fundering, zodat ook deze kan meebewegen. Beide wanden zijn bepalend voor het beeld in de stationhal.

Esthetiek in techniek

De technische installaties en draagconstructieve voorzieningen zijn optimaal benut om invulling te geven aan de gewenste industriële uitstraling van het metrostation. Daarnaast vormt het samenspel van de toegepaste materialen een eenduidig geheel en lijken verschillende ruimtes in elkaar over te vloeien. Het gebouw is dan ook genomineerd voor verschillende architectuurprijzen; de ‘Oslo City Architecture 2017’ en de ‘Norwegian concrete award’.

De originele grot Lascaux is per toeval ontdekt in 1940 door tieners die een hond uitlieten. Niet lang daarna zijn de gewelven, met goed bewaarde prehistorische tekeningen tot wel 19.000 jaar oud, opengesteld voor publiek. Het was een populaire bestemming met wel duizend bezoekers per dag en het kreeg de bijnaam ‘de Sixtijnse Kapel van de prehistorie’. Aan het eind van de jaren ’50 van de vorige eeuw werd duidelijk dat de kwetsbare muurschilderingen door de grote toeloop van mensen beschadigd raakten. Daarom is de grot in 1963 gesloten. In 1983 opende een door wetenschappers vervaardigde replica: Lascaux II. Ook deze werd drukbezocht. Vervolgens is nog een reizende tentoonstelling gemaakt die Lascaux III heette. Door verbeterde technologische mogelijkheden is, ongeveer dertig jaar na opening van de eerste replica, gestart met de reconstructie van een geheel nieuwe replica, Lascaux IV.

downloads

Ook interessant

Functioneel
Projecten
Dam & Partners Architecten | De prefab gevelconstructie van Hourglass is dienbaar aan esthetiek.
Functioneel
Projecten
Winy Maas MVRDV | Functioneel beton beschermt de publiek toegankelijke museumcollectie, zowel constructief als voor binnenklimaatbeheersing.
Functioneel
Projecten
HilberinkBosch Architecten | Gedraaid overstekende verdiepingen worden geaccentueerd door witte betonband in wooncomplex Upstairs.