Nieuw ‘huis’ Den Helder: maritiem karakter in beton

HUISVESTING AMBTELIJK APPARAAT DEN HELDER – RIJKSWERF WILLEMSOORD

Meer specs

Een moderne, duurzame werk- en ontmoetingsplek, die past bij wat marinestad Den Helder wil uitstralen: maritiem, industrieel en stoer. Dat waren de wensen voor nieuwe huisvesting van het gemeentebestuur. Zo geschiedde, want sinds 2023 is dat bestuur gevestigd in twee bijzondere panden op Rijkswerf Willemsoord: een voormalige mastenloods en een oude zeilmakerij van de Koninklijke Marine. 

Rijksmonument gebouw 66, de oude mastenloods, is nu het publieke en politieke hart van het gemeentehuis. Hier vind je onder meer de klantenbalies, de trouwzaal en de raadzaal. Gebouw 72, de voormalige zeilmakerij, is omgebouwd tot werkkantoor voor het college en de ambtenaren. 

Auteur: Foka Kempenaar

stadhuis den helder plein aanzicht
De voormalige Zeilmakerij ligt aan een plein (foto: Stefan Müller)

Van werkplaats tot kantoor

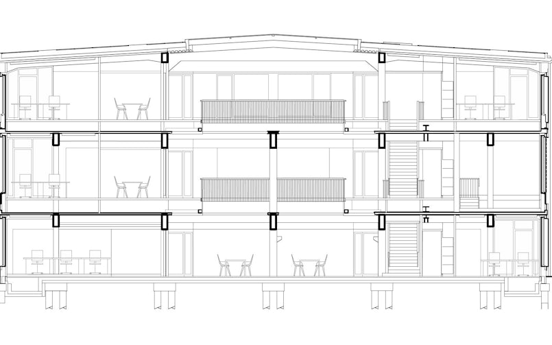
De zeilmakerij had geen monumentstatus, maar wel een duidelijk industrieel karakter. Vooral het betonnen skelet was opvallend. Dit robuuste beton moest zichtbaar blijven en is daarom vrijwel volledig intact gelaten.

Dat het betonnen skelet in het zicht moest blijven, zorgde binnen het bouwteam voor de nodige vraagtekens. Architect Caroline Versteden: “Want als je kolommen in het zicht laat heb je een thermisch probleem. De eerste ingeving was dus ‘we gaan de buitenkant afwerken met isolerende stuc’. Maar door onze ervaring met andere reconstructies en renovaties wisten wij dat isolatie aan de binnenkant goed mogelijk was, en eigenlijk de enige optie, als de aanblik van een gebouw authentiek moet blijven.” 

Aandacht voor details en maatwerk

Isoleren aan de binnenzijde is een duurdere oplossing, die meer vraagt qua aansluitingen en detaillering. Tegelijkertijd was door deze aanpak behandeling aan de buitenzijde niet nodig. “De betonnen gevel is op best veel plekken gerepareerd. We hebben er bewust voor gekozen om die reparaties zichtbaar te laten. Het rauwe karakter van de plek mocht best voelbaar zijn.” Uri Gilad, medeoprichter en partner van Office Winhov: “Dat pas bij de filosofie van ons bureau. Je moet het gebouw laten vertellen wat het heeft meegemaakt.”

De dichte bakstenen geveldelen zijn vervangen door aluminium platen en raamkozijnen. Het gebouw kreeg immers een kantoorfunctie. Uri: “Tegelijkertijd wilden we in het nieuwe ontwerp de expressie van het betonskelet behouden, met een duidelijk andere materiaal-invulling. Daarom kozen we voor aluminium in menie-rode kleur.” Zo bleef het karakteristieke, opvallende contrast in de gevel behouden. “Bovendien is dat een tint die je van oudsher vaak terugziet op de rompen van zeeschepen.”

Het aanpassen van de gevel was precisiewerk. Er werd gewerkt met massieve aluminium kozijnen en geveldelen, terwijl er aan dit bestaande gebouw niets recht was. Uri: “Elk raam is maatwerk. Om dit werkbaar te maken bedachten we samen een systeem: het dunne binnenframe (met daarin de beglazing) heeft ogenschijnlijk dezelfde maatvoering, en maattoleranties worden opgevangen in de zone rondom de kozijnen.” 

stadhuis den helder vide interieur
In het midden van het gebouw zijn vloerdelen eruit gezaagd om een vide te maken (foto: Max Hart Nibbrig)

Transparantie en onzichtbare techniek

De ramen zorgden voor transparantie en de nodige lichtinval. Maar de voormalige werkplaats was diep. Om echt alle werkruimten van voldoende daglicht te kunnen voorzien, is het betonskelet ter hoogte van de vide opengewerkt. De ruimtes eromheen profiteren zo van natuurlijk licht. “Bovendien wordt zo de onderlinge relatie tussen de verdiepingen en het contact tussen collega’s onderling versterkt.”

Caroline: “Om ook hier te zorgen dat het betonskelet zoveel mogelijk in het zicht kon blijven, hebben we gewerkt met een verhoogde computervloer. De vloeren zijn 85 cm opgetild. Op de eerste verdieping liggen de installaties boven de betonvloer, onder de verhoogde nieuwe vloer. Zo blijft de betonnen constructie zichtbaar. De werkvloeren zijn uiteindelijk 65 cm opgetild voor luchtbehandeling.” 

Flexibel ontwerpen, durven twijfelen

Volgens Caroline en Uri is het bij een transformatieproject heel belangrijk dat je aan het begin van zo’n traject harde keuzes durft te maken. “We kozen er direct voor om alle bakstenen gevels te verwijderen, omdat we ervan overtuigd zijn dat je iets goed moet doen als je het doet – zeker in het licht van de nieuwe functie. Zo kwam de betonstructuur in zicht, en was snel duidelijk dat alles scheef stond. Het casco vormde dus ons uitgangspunt, waarna we samen met het team gingen nadenken over de invulling.”

Transformaties vragen dus om een flexibele houding. “Dat zorgt voor twijfel, want je werkt niet volgens een vast systeem. Maar die twijfel is juist een goede raadgever. May doubt be your trusted companion! is niet voor niets een van de credo’s in de Office Winhov uitgave Architecture Repurposed.” 

stadhuis den helder havenaanzicht 2 1
De Rijkswerf met maritiem karakter, met de zeilmakerij die getransformeerd is naar gemeentekantoor op de achtergrond (foto: Stefan Müller)

Ook interessant

Circulair
Projecten
Zaha Hadid Architects | Het Olympische Aquatics Centre in Londen wordt aangepast met gerecyclede grondstoffen voor een lange toekomst.
Circulair
Projecten
Pihlmann Architects | Transformatie van een voormalige fabriek tot multifunctionele werkruimte leidt tot 88% uitstoot en 90% minder afval.
Circulair
Projecten
LKSVDD architecten | Mede op basis van circulariteit kreeg zorgcomplex Margaretha een rank, flexibel, vrij indeelbaar betoncasco.