Klaar voor volgende 'levensfase'

GEBOUW ANTON, EINDHOVEN

Meer specs

Gebouw Anton, voormalig fabrieksgebouw van Philips en ‘stille getuige van het verleden’, maakt weer volop deel uit van het stedelijk leven in Eindhoven. Het betonnen casco, met open plattegrond en grote raampartijen, bood kansen voor herbestemming. Het imposante, industriële pand uit de jaren ’20 van vorige eeuw wordt nu gebruikt om in te wonen, werken en winkelen. Daarbij is de karakteristieke uitstraling van weleer behouden gebleven. Gebouw Anton is klaar voor de volgende ‘levensfase’.

Auteur: Barbara Heijl

Imposant industrieel erfgoed

De oude fabrieksgebouwen van Philips zijn kenmerkend voor het stadsdeel Strijp in Eindhoven. De zeer introverte industriële enclave is in de laatste jaren langzaam maar zeker veranderd in een open, levendige stadswijk. De herbestemming van een van die fabrieksgebouwen, Gebouw Anton, is op fijngevoelige manier aangepakt. De textuur van de originele houten bekisting was nog in de gevel zichtbaar. Dit is behouden door de gevel alleen te laten schilderen in de oorspronkelijke tint wit. Bij het naastgelegen Gebouw Gerard, dat in stijl en uitstraling een soort ‘broer’ is van Gebouw Anton, was dit niet mogelijk. De kwaliteit van het beton is daar een stuk minder goed. Dit komt waarschijnlijk doordat Gebouw Gerard twee jaar eerder is opgeleverd in 1927. In die periode maakte de ontwikkeling van beton nog grote sprongen.

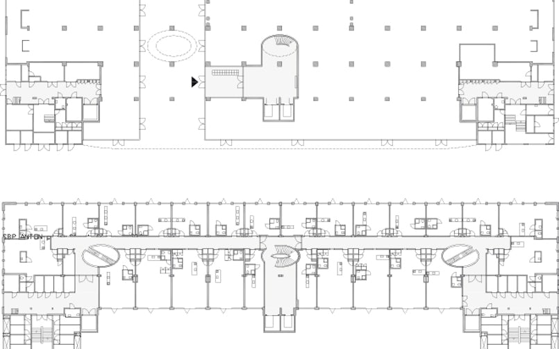
Vreemde rondingen

Een nieuwe golvende luifel van geëxtrudeerd aluminium legt het accent op de hoofdentree. De begane grond is ingericht als commerciële ruimte. De verdiepingen bestaan uit lofts, geschikt voor zowel wonen als werken. Deze units zijn flexibel indeelbaar en schakelbaar. Nieuwe trappenhuizen zijn ingepast in vijf ellipsvormige cilinders die het gebouw doorboren. Drie daarvan steken boven het gebouw uit en fungeren als daklichten. Omdat de ligging van de middencorridor per verdieping verspringt, zijn er speelse doorkijkjes naar andere verdiepingen gecreëerd.

Ringbalken

Om de belasting van de verwijderde vloerbalken ter plaatse van de sparingen op te vangen, zijn ellipsvormige betonnen ringbalken aangebracht. Het was op voorhand de bedoeling alle nieuwe betonelementen te stuken en schilderen. Echter, toen de ringbalken uit de mal kwamen, bleek de kleur en structuur zo goed te passen bij het bestaande beton, dat de keuze is gemaakt om ze toch onbehandeld te laten.

Klaar voor toekomstige belastingen

Om het gebouw zo goed mogelijk voor te bereiden op de toekomst, is de constructie verstevigd. Zodoende kunnen twee extra bouwlagen worden toegevoegd op het gebouw. Voor het afdragen van de extra verticale belastingen, zijn de kolommen op de bovenste verdieping versterkt. Nu staat daar naast iedere bestaande kolom een nieuwe kolom en blijft de originele constructie afleesbaar. De overcapaciteit is nu gebruikt voor een daktuin.

Ook interessant

Circulair
Projecten
Cepezed en IMd Raadgevende Ingenieurs | Andere manier van kijken noodzakelijk voor ontwerpen met hergebruikte bouwdelen.
Circulair
Projecten
Heatherwick Studio, VDMMA | Een monumentale, betonnen graansilo in Kaapstad in Zuid-Afrika is getransformeerd naar museum Zeitz MOCAA.
Circulair
Projecten
K3 Architectuur | Stationsentree Arnhem is verplaatst en hergebruikt als theehuis, een opvallend elegant paviljoen van glas en beton.