Hoe beton kan bijdragen aan duurzame schoonheid

STUDENTENHUISVESTING AURORA IN EINDHOVEN

Meer specs

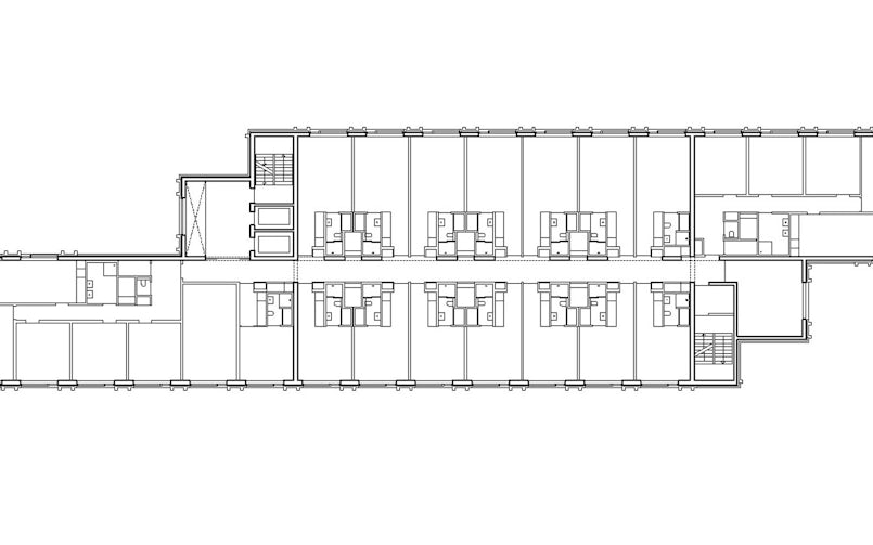
Negen jaar na oplevering oogt de eerste permanente studentenhuisvesting van de TU Eindhoven nog steeds fris. Het bewijs dat je supersnel, esthetisch bijzonder en duurzaam kunt bouwen met beton. Woontoren Aurora werd in 2016 opgeleverd, biedt ruimte aan 300 studenten, en is vrijwel volledig opgetrokken uit geprefabriceerd beton. Het is duurzaam door de lange esthetische levensduur en de flexibele indeling door dragende gevels. Het gebouw is licht versprongen langs de middengang, wat zorgt voor een driedeling en een asymmetrische, ranke kopgevel.

Auteur: Foka Kempenaar

studentenhuisvesting aurora tu eindhoven geveldetail
Strakke ritmiek van de gevel toont de indeling van de units (foto: Stefan Muller)

harmonieuze aansluiting

De toren staat aan de rand van het Dommeldal, aan de noordzijde van de campus. De opzet sluit aan op het stedenbouwkundig plan van S.J. van Embden uit 1957, waarin gebouwen als losse volumes in een groen landschap zijn geplaatst. Het huidige masterplan van Christian Rapp borduurt voort op die opzet. Uri Gilad, medeoprichter en partner van Office Winhov: “Het gebouw, met zijn slanke proporties en evenwichtige verhoudingen, voegt zich op harmonieuze wijze tussen de bestaande volumes en sluit aan bij het masterplan van RAPP.”

Zwitserse inspiratie

Bij de inschrijving voor deze Europese aanbesteding putte Office Winhov uit eerdere ervaringen in Zwitserland, waar ze samen met Office Haratori de betonnen woontoren Zölly ontwikkelden. “We wilden met dit ontwerp een stap verder gaan: een gebouw realiseren dat volledig geprefabriceerd is. Alles is in de fabriek gemaakt, inclusief beglazing, en op de bouwplaats gemonteerd met slechts één kraan. Geen enkel gebouwdeel is in het werk gestort.”

Dankzij het volledig geprefabriceerde systeem ging de bouw razendsnel. “Het uitgangspunt was twee weken per verdieping,” meldt Hurks op zijn website over het project, “Maar door het stapelen van prefab elementen lukte het in zes werkdagen. Al na 82 dagen bereikten we het hoogste punt.”

studentenhuisvesting aurora tu eindhoven gevelopbouw
Schematische weergave van de opbouw van de prefab betongevel in verdiepingshoge elementen met nokken waar de vloer opgelegd wordt (tekening: Offcie Winhov)

Ritmiek en polijsten

De gevel en de corridor wanden dragen de vloeren met daarop de sanitaire kern. Ook de badkamers zijn geprefabriceerd. De gevelelementen zijn in twee hoogtematen geproduceerd, die per woonlaag afwisselend zijn toegepast. Zo ontstond een gevelbeeld met ritme, diepte en variatie – verre van saai.

Het ritme is nog eens versterkt doordat een deel van de ribben is gepolijst. “Zo springen ze als het ware naar voren en krijg je meer reflectie van licht,” zegt architect Caroline Versteden. Elke extra handeling brengt kosten met zich mee, dus is ervoor gekozen het polijsten te beperken tot de vooruitstekende ribben, om het beeld van het grid te versterken.

Titaanoxide en flexibiliteit

Een andere keuze die op het eerste gezicht kostbaar lijkt, is de toevoeging van titaanoxide in het betonmengsel. Een must, volgens Uri – en een werkwijze die Office Winhov standaard toepast. “Architecten en aannemers in Nederland zouden hier veel vaker voor moeten kiezen. Hydrofoberen lijkt misschien goedkoper, maar na een paar jaar zie je vervuiling en vochtvlekken ontstaan. Omdat het beton door titaanoxide veel langer mooi blijft – en dus naast een esthetische ook een duurzame keuze is, adviseren wij bouwteams vooral om deze toevoeging te doen.”  

Duurzaam is dit project ook door de gekozen bouwmethode. Uri: “Beton blijft 100 jaar goed, maar dan moet het wél aanpasbaar zijn.” Daarom is er gekozen voor een superflexibele opzet: er zijn geen dragende binnenwanden gebruikt. “De lichte scheidingswanden zijn demontabel. Dit bespaart materiaal en verkleint de CO₂-footprint. Bovendien kun je het gebouw in de toekomst telkens weer anders indelen.”

Start met de constructie!

Het volledig werken met prefab beton heeft de architecten veel geleerd. Caroline: “Bijvoorbeeld dat je in de fabriek al kunt sturen op kwaliteit. Dat merkten we al in Zürich, en nu nog meer bij ons project in Nederland. Je kunt veel vooraf met elkaar afstemmen, uitwerken en detailleren. Je hebt veel controle, en dat is voor iedereen prettig. Bovendien is het belangrijk om vakmensen – zoals degenen die de prefab elementen gaan maken – al heel vroeg mee te nemen in het bouwoverleg en bij de technische uitwerking.”

Uri vult aan: “In Nederland zijn we gewend om een ontwerpproces te starten met ‘ik wil iets moois maken’. Pas daarna bedenken we hoe we het gaan bouwen. De afstand tussen ontwerp en constructie is vaak groot. In Zwitserland begin je als architect altijd met de constructie.” Dat principe geldt volgens hem nog sterker als je een volledig prefab gebouw wilt maken. Zijn credo: “Zorg dat je de techniek beheerst en in de hand hebt, want dan kun je een heel rijk gebouw maken dat aan alle kanten werkt.”

Ook interessant

Esthetisch
Projecten
Studio Prototype | Scherpe, ritmische belijning kenmerkt het gevelbeeld van een bijzonder wooncomplex in Amsterdam.
Esthetisch
Projecten
Nynke Koster | Echo is zowel kunstwerk als gebruiksvoorwerp, gemaakt met een bijzondere combinatie van gegoten beton, epoxy en Mica.
Esthetisch
Projecten
WRK Architecten | Een bijzondere gevel in Delft toont hoe bepalend de keuze van een steen kan zijn voor de esthetiek van een project.