MULTIFUNCTIONEEL GEBOUW PIERRE MENDÈS, SAINT-MÉDARD-EN-JALLES, FRANKRIJK
Auteur: Kirsten Hannema
De opgave was ingewikkeld: bouw op een krappe binnenstedelijke locatie, omringd door historische bebouwing, een multifunctioneel gebouw met publieke voorzieningen en sociale woningbouw. W Architectures vatte complexiteit in een eenvoudig beeld: een monoliet blok van in het werk gestort beton, dat opvalt door zijn verfijnde structuur.


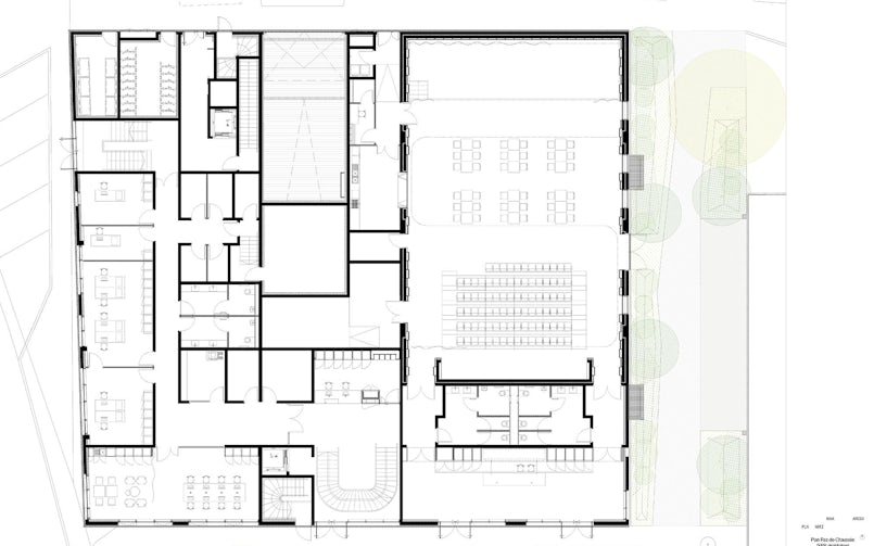
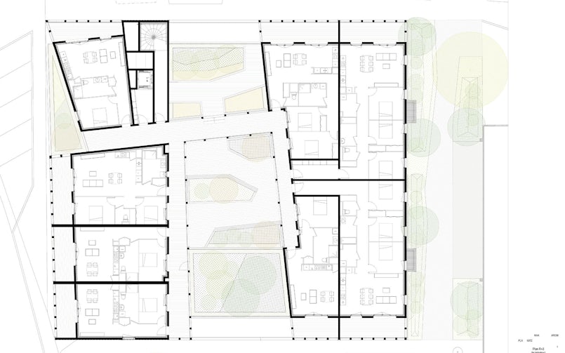
“Voor ons was meteen duidelijk dat we een gebouw van beton zouden maken”, zegt architect Yann Courrech van W Architectures over de opdracht die hij in 2017 kreeg om in Saint-Médard-en-Jalles, een dorp ten noorden van Bordeaux, een complex te realiseren met een parkeerkelder, gemeentekantoren, een gezondheidscentrum, een multifunctionele zaal met 400 plaatsen en daarboven 3 lagen met 26 sociale huurwoningen. “De kunst was om het er niet uit te laten zien als typisch woongebouw of een stadskantoor, maar de functies tot een eenheid te smeden. We wilden een iconisch bouwwerk maken met een verfijnde structuur.” Het gebouw – 34 x 38 meter en 20 meter hoog – is geconstrueerd met in het werk gestort beton, waarbij de slanke kolommen in de gevels en galerijen fraai contrasteren met de massiviteit van het bouwblok.
Het complex staat achter het gemeentehuis in het centrum van Saint-Médard, omringd door woningen, twee scholen en een historische kerk. “Het was een lastige locatie”, zegt Courrech. “We zijn allereerst in gesprek gegaan met erfgoedorganisatie Les architectes des bâtiments de France over de omgang met de monumenten. Het gebouw moest passen bij de bestaande stenen gebouwen, zowel wat betreft het ritme van de ramen in de gevels als het materiaalgebruik. De voorwaarde die werd gesteld aan het werken met beton, was dat we een soortgelijke steen zouden toepassen in de gevels.” De architecten bedachten om het betonnen gevelbeeld dat zij voor ogen hadden als een raamwerk in te vullen met – lokaal gewonnen – Brétigny steen. De stenen zijn in halfopen en gesloten metselverbanden in de gevelvlakken verwerkt.




“De bouwplaats was krap, er was weinig ruimte voor de bouwkraan en opslag en we moesten voorzichtig te werk gaan, rekening houdend met de omringende monumenten”, vertelt de architect. Er bleken maar een paar bouwbedrijven in de regio die zo’n logistiek complex project kunnen organiseren en de benodigde (stalen) bekisting bij deze hoogte kunnen maken. Allereest werd de fundering met de parkeerkelder en de begane grondvloer gestort. Daarop is de doos in doos constructie voor de multifunctionele zaal gemaakt, gevolgd door de kern met lift en trappenhuis, de verdiepingsvloeren, wanden, kolommen en het dak. Pronkstuk is de spiraaltrap die vanuit de publiekshal op de begane grond naar de eerste verdieping voert. Deze is als enige met een houten bekisting gemaakt. “Daar zit veel handwerk en vakmanschap in”, zegt Courrech.
“Om de gewenste witgrijze kleur van het beton te bepalen, zijn vooraf veel tests gedaan,” vertelt de architect. “Met het bouwbedrijf maakten we een recept, steeds op zoek naar die esthetische kwaliteit.” Beeldbepalend zijn de 325 kolommen in de gevels en galerijen, die slechts 20 x 20 cm in doorsnede meten. Deze konden zo slank worden uitgevoerd door een deel van de betonnen liggers als wanden uit te voeren; de hoogte varieert van 0,3 tot 3,5 meter. De gesloten geveldelen zijn aan de binnenzijde voorzien van een harde isolatielaag, afgewerkt met strakke witte panelen en houten kastwanden. De overige betonnen delen zijn in het zicht gelaten en voorzien van een matte glazuurcoating (LUCITE® 808 IMLAR van Dörken Coatings) waardoor vuil geweerd wordt.
Naast esthetische eisen speelde duurzaamheid een belangrijke rol bij het ontwerp, vertelt Courrech. “De bomen op de bouwlocatie zijn behouden, we hebben grote beplante terrassen tussen de woningen aangelegd en het gebouw is zo compact mogelijk ontworpen.” De architect wijst op het gebruik van daglicht dat overvloedig door de hoge ramen binnenvalt waardoor beperkt kunstlicht nodig is. Het licht helpt om je te oriënteren door het gebouw, waarbij de ruwe betonnen wanden fraai worden aangelicht. “We zien dat er veel evenementen en feesten in de zaal georganiseerd worden; er is enthousiasme over hoe het gebouw werkt en eruitziet. Er zijn weinig gebouwen die zo hoog zijn en toch passen in hun omgeving. Het is een complex gebouw, dat vanzelfsprekend oogt.”