REVITALISATIE BUNKERGEBOUW EN WOONTOREN ‘BUNKERTOREN’ IN EINDHOVEN
Auteur: Naomi Heidinga
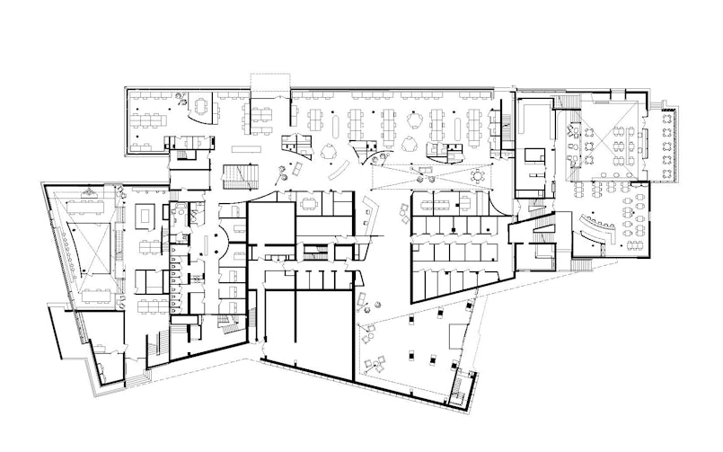
Architectenbureau Powerhouse Company heeft de Bunker in Eindhoven nieuw leven in geblazen. De betonnen bunker heeft een tweede leven gekregen. Door het toevoegen van een woontoren vervult het gebouw een nieuwe functie, en kan het jaren vooruit. De kracht van beton en de brutalistische uitstraling van het originele gebouw zijn behouden gebleven in het nieuwe ontwerp voor de BunkerToren.
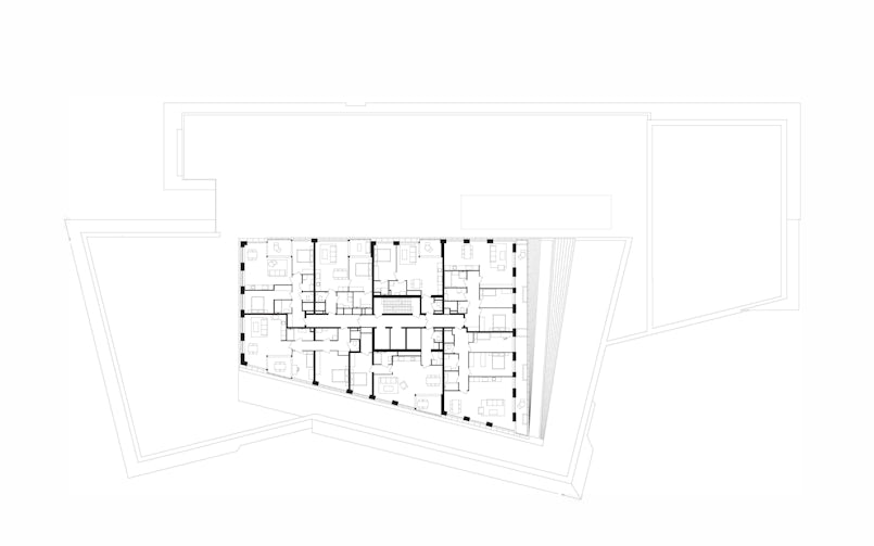
De grootste uitdaging was om de fundering voor de woontoren erin te krijgen, aldus De Ru. De 100 meter hoge toren biedt plek aan 210 koop- en huurappartementen met verschillende afmetingen. “De fundering is goed gelukt.” De draagconstructie is opgebouwd uit dragende wanden, een betonnen kern en penanten in de gevel. De constructie is grotendeels in het werk gestort. Daarnaast is prefab beton toegepast, onder meer in de vorm van breedplaatvloeren, kolommen, lift en traphuiswanden, massieve vloerplaten, balkonplaten, trappen en bordessen.
Het ontwerp voor de brutalistische bunker is van Huib Maaskant. “Met het ontwerp voor de woontoren wilde ik aansluiten bij het originele ontwerp van Maaskant,” aldus De Ru. “Ik wilde er, met respect voor Maaskant, wel mijn eigen draai aan geven.” In de woontoren zijn daarom de architecturale thema’s herhaald: schuine muren, sterke horizontale lijnen, strakke details en stoere materialen. Zo vormen brutalistisch en modern een nieuw geheel. “Maaskant is een bijzondere architect, die grote gebouwen heeft gemaakt zoals de Euromast, het Groot Handelsgebouw en de Hilton hotels in Amsterdam en Rotterdam. Tijdens het proces heb ik meermaals gedacht: ‘wat zou Maaskant ervan vinden?’ Ik denk dat hij dit wel vet had gevonden, om een toren in de bunker te zetten.”



